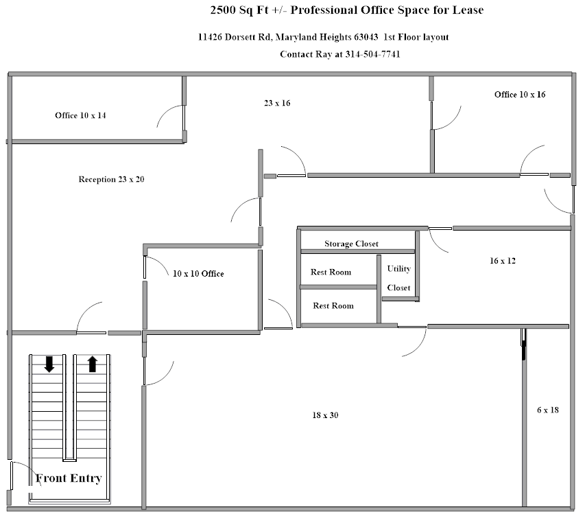
11426 Dorsett Rd - 2500 Sq. Ft. +/-
Professional Office space at a great location only minutes from Interstates 270, 70, 170 and Lambert Saint Louis International Airport.
First floor
1515 N. Warson Rd, Suite 100
St. Louis, MO 63132

(314) 570-8568
1515 N. Warson Rd
Saint Louis, MO 63132
(314) 570-8568
Privacy Policy  ::  Terms  :: Contact  Us
Convenient to many fine restaurants and hotels.such as Starbucks, Westport Social,  Trainwreck Saloon and more.
Parabolic LED Lights
Ample parking
$13.50 SQ FT NNN  - no CAM charges
AT&T fiber in building
Spectrum in building
Mmonument signage available
Landlord  occupies the second floor